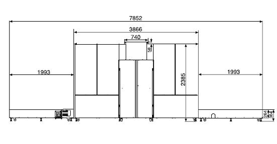
FISCAN CMEX-160190